달 아래 집, 월하랑
오래된 한옥을 다듬어 새로운 기억을 덧입히는 일. 인생의 동반자가 된 두 사람의 첫걸음은 그렇게 시작되었다.
![]() |
서울 대학로 번화가에서 조금만 더 걸어 골목으로 접어들면, 세월 느껴지는 집들이 정답게 모여 있다. 그중 나무의 뽀얀 살결을 드러낸 새 대문을 밀고 들어서니 마당을 품은 ‘ㄷ’자 한옥이 포근하게 반긴다.
시골에서 자란 남편은 마당이 없으면 집이 아니라고 생각했고, 아파트에서만 살아온 저에게 단독주택은 생경하고 불편하게만 느껴졌어요.
김형섭, 전소현 씨 부부가 신혼집을 장만하는 일은 시작부터 난관이었다. 의견을 모으는 일부터 쉽지 않았지만, 교통이 편리하고 주변 여건이 좋아야 한다는 전제하에 마당 있는 집을 구해보기로 했다. 나아가, 두 사람 모두 건축 설계를 하고 있으니 이왕이면 ‘한옥’이 좋겠다는 데 마음이 통했다. 마당과 한옥 구조가 잘 보존되어 있고, 전철역과 가까우며, 예산에 맞는 집을 찾아 발품 팔기를 1여 년쯤 지났을까. 생각지도 못한 혜화동 대학로 주변 집들 사이에서 이 한옥을 발견했다.
간살 창 너머 은은하게 흔들리는 대나무를 보는 것만으로 마음이 차분해지는 대문간 공간. 수납장 위에는 철거하면서 나온 재봉틀과 정겨운 소품이 놓였다. |
![]() 대문을 열면 마당을 중심으로 ‘ㄷ’자 한옥의 풍경이 한눈에 들어온다. |
1935년 등기된 20평 남짓한 땅에 지어진 집. 부동산을 통해 처음 이 집을 대면했을 때, 부부는 단숨에 매료되었다. 둘이 살기 적당한 규모에 그리 구석지지 않은 골목에 있었고, 남향 볕이 따뜻하게 마당을 비추고 있었다. 낡고 손볼 곳이 많았지만 가능성이 무궁무진해 좋았고, 한옥의 전통적인 구조가 그대로 살아있어 좋았다.
한옥을 고치는 일은 설계부터 시공, 감리까지 부부가 도맡았다. 일반 건물과 달리 각도가 미세하게 어긋나 어렵사리 실측을 마쳤는데, 본격적인 공사에 들어가니 철거하기 전후는 물론 공사 중, 최종 사이즈까지 모두 제각각이라 매번 도면을 수정해야 했다. 첩첩산중으로, 대지 특성상 대수선이 불가능해 한옥 수선 범위에 관한 건축법 내용을 시공자에게 일일이 전해야 했고 부재 하나하나를 소중히 다뤄야 하는 상황이었다.
![]() 침실에서 바라본 전경. 들창을 열면 거실, 주방, 창밖의 마당 풍경까지 시원하게 펼쳐진다. |
대문간 옆 방은 주방으로 이어진다. 이 방에는 가구를 제작해 작은 작업 공간을 두었다. |
다행히 주요 구조재는 튼튼하게 잘 남아 있었다. 방수 천막을 덮은 지붕은 내부 습기 때문에 개판과 회첨골이 많이 썩어 있었지만, 오히려 천막이 서까래 등의 주요부 자재를 보호하는 역할을 한 것 같았다. 바닥은 철거해보니 계속된 덧방으로 총 4개의 층이 겹겹이 쌓여 있었다. 상당한 깊이였는데 그 안에서 구들장을 비롯해 신문지, 재봉틀, 밥상, 심지어 선풍기까지 나왔다고.
“저희 삶에 맞추어 내부 평면은 완전히 새로 구성했지만, 입면에는 과거의 흔적을 남기려고 노력했어요. 문이 있던 자리를 최대한 지키고자 했고, 옛 창틀도 버리지 않고 재활용했죠.”
불필요한 것을 덜어내고 두 사람의 라이프스타일을 녹여 재해석한 한옥은 지난 세월과 이야기를 잊지 않고 여전히 이어간다. 누구의 것인지 모를 재봉틀은 대문간 공간에 하나의 소품이, 구들장은 마당의 디딤석이 되었다. 옛 부엌의 다락 창이 있던 자리에는 띠 창이 생겼고 옛 부엌 창틀은 대문간의 벽으로, 작은 방에서 주방으로 이어지는 벽체의 하부 창으로 다시 자리 잡았다.
간소하고 깨끗한 인상의 침실. 오량보와 삼량보가 만나는 지점인 천장에서는 또 다른 느낌으로 노출된 구조를 볼 수 있다. |
커튼으로 공간을 분리하는 드레스룸. 차 마시는 휴식 공간이 되기도 한다. |
HOUSE PLAN
대지위치 서울시 종로구
대지면적 72.7㎡(21.99평)
건물규모 지상 1층 / 거주인원 2명(부부)
건축면적 48.86㎡(14.78평) / 연면적 48.86㎡(14.78평)
건폐율 67.21% / 용적률 67.21%
최고높이 4.3m
구조 기초 –기초석(주춧돌) / 지상 – 한옥 목구조(기둥-보) / 지붕 - 서까래 + 개판 위 단열 + 기와지붕(고기와)
단열재 지붕, 벽 - 수성연질폼 / 부분 –압출법보온판 1호
외부마감재 회벽, 와이드 벽돌
창호재 필로브, 명가창호, 송추창호(제작 창호)
에너지원 도시가스
조경석 기존 구들장, 흰 자갈
시공 고호건축
설계 S.aer Arhitects(에싸에르 아키텍츠) 전소현, 김형섭
www.saer-architects.com sohyun@saer-architects.com
드레스룸 한쪽 벽에는 수납장을 충분히 짜고, 세탁기와 건조기를 숨겨두었다. |
![]() 욕실에는 뚜껑을 덮을 수 있는 욕조를 만들어 샤워 부스로만도 사용 가능하다. |
안으로 들어가면 단정하고 간결한 한옥의 멋과 여백의 미를 물씬 느낄 수 있다. 하나의 보처럼 보이는 커튼 박스, 조명은 대부분 간접조명으로 설치한 것까지 작은 것도 놓치지 않고 세심하게 신경 쓴 정성이 돋보인다. 그중 가장 인상적인 건 집 안 어느 벽에도 스위치가 보이지 않는다는 것. 남편 형섭 씨는 구글 네스트 허브를 활용해 직접 스마트홈을 설계, 설치해 미관상 거슬릴 수 있는 작동 기기들을 최소화하였다. 단 하나, 부모님이 오셨을 때 불편하실 것 같아 욕실에만 조명 스위치를 설치했는데 그 외에 모든 조명, 도어락, 인터폰, 냉난방 등은 음성명령 혹은 허브 디스플레이, 휴대폰으로 제어한다.
![]() 주방에서 바라본 거실. 여름에는 마당을 향해 시원하게 열린 이곳이 침실이 되기도 한다. |
PLAN
![]() |
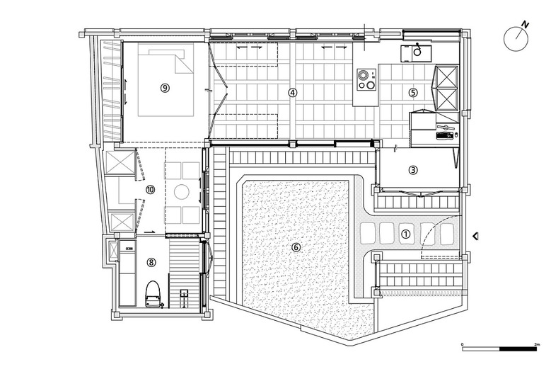
BEFORE
![]() ① 현관 ② 아궁이방 ③ 방 ④ 거실 ⑤ 주방 ⑥ 마당 ⑦ 창고 ⑧ 화장실 ⑨ 안방 ⑩ 드레스룸 |
AFTER - 48.86㎡
평면은 방을 여러 개로 나누기보다 적은 식구가 살기에 적합한 원룸 타입으로 설계했다. 대신, 단 차이를 두어 각 공간의 위계를 두었고 필요에 따라 칸을 분리할 수 있도록 했다. 부족한 수납은 냉장고 위 숨은 에어컨, 드레스룸 벽장 속 세탁기와 건조기, 대문간 간살 창 아래 수납공간 등 한옥 칸의 천장과 바닥, 붙박이장을 십분 활용해 해결했다.
INTERIOR SOURCE
내부마감재 벽·천장 –벤자민무어 SCUFF-X, 월넛 무늬목 / 벽·바닥 - 시멘토랩 마이크로토핑, 일반 나왕 합판 위 투명 오일 스테인 / 바닥 –노바마루 한식 원목 마루
욕실 및 주방 타일 시멘토랩 마이크로토핑
수전 등 욕실기기 성신도기
주방 가구 AP. Design 김미애
조명 T5 LED 라인 조명, 12lighting LED 원형 매립등
현관문 한식 대문(송추창호 제작)
방문 한식 창호(송추창호 제작)
BEFORE
![]() |
집은 한두 차례 크게 수리한 흔적이 있었다. 비가 샜는지 지붕에 천막이 덮여 있었고, 시멘트로 메꿔진 아궁이와 굴뚝, 무너질 듯한 벽면 사이로 드러난 산자들까지 세월의 흔적이 역력했다. 하지만 기둥과 서까래 등 주요 구조부가 온전히 남아 있었다.
마당에서 보내는 시간은 부부에게 새로운 취미이자 즐거운 일상이 되었다. 드레스룸 벽에는 옛 부엌이 있던 흔적을 살려 창을 내고 삼베로 방충망을 대신했다. |
“대문은 아직 스테인 칠을 안 했어요. 오래된 기둥과 보에 비해 너무 새것이라 세월의 때가 좀 더 묻은 다음 칠하려고요.”
이 집의 새로운 주인이 된 지도 어느새 3년 차. 부드럽게 비추는 아침 햇살에 눈뜨고, 은은한 달빛 아래 앉아 도란도란 수다를 떠는 보통의 하루. ‘집에서 사계절을 느낀다’는 평범하면서도 특별한 일상을 부부는 매일, 새롭게 경험한다. 곧 태어날 아이와 함께 켜켜이 쌓아갈 날들을 설레는 맘으로 기다리면서.
취재_ 조고은 | 사진_ 변종석
ⓒ 월간 전원속의 내집 2021년 3월호 / Vol.265 www.uujj.co.kr







