퇴사 후, 7천7백만원으로 직접 지은 경량목구조집

연천 몬슨하우스

33살에 시작한 내 집 짓기 프로젝트를
성공적으로 끝낸 귀촌 3년차 부부.
손수 지은 집에서 10개월 된 아들, 반려견 두 마리와
함께 하는 행복한 삶이 아직도 꿈만 같다.

{img}
{img}

Model -집을 계획하면서 만든 모형의 발전과정. 목조주택 골조까지 만들 정도로 공을 들였다.

악기를 가르치는 김은지 씨와 광고 영업 일을 하던 문준 씨 부부. 은행 대출을 받아 김포에 있는 아파트를 신혼집으로 마련했지만, 높은 이자를 매달 갚아 나가기 위해 다른 것들을 참아야 하는 생활이 고달팠다. 이들은 다른 사람과 달리 성공해서가 아니라, 돈이 없어서 집을 짓기로 했다고 말한다.

“처음에 아내에게 제안했을 때는 당연히 거절할 줄 알았어요. ‘오, 좋은데? 해남이나, 진도처럼 아예 먼 데서 시작해보는 건 어때’라고 반응해서 오히려 좀 당황했어요(웃음).”

장소에 구애받지 않는 기술이 있으니까, 어떤 일이든 시작할 수 있는 젊음이 있으니까 식의, 약간은 호기로운 마음으로 그렇게 두 사람은 귀촌 준비를 시작했다.

{img}
{img}

직접 시공할 집이었기에 요철이 거의 없는 심플한 단층 박공지붕집으로 계획했다. 작은 집이지만 창호는 무려 17개에 달하는데, 적재적소에 빛을 끌어들이되 열을 뺏기지 않도록 창 크기에 특히 신경 썼다.

예산이 빠듯했기에 집은 직접 짓기로 마음 먹었다. 문준 씨는 다니던 직장을 퇴사하고 국비교육으로 진행하는 목수학교에 들어가 그 누구보다 성실히 수업을 들었다. 수료 후에는 주택 현장을 찾아다니고 수십 권의 책을 섭렵하며 독학으로 내 집을 짓기 위한 실전 준비에 뛰어들었다.

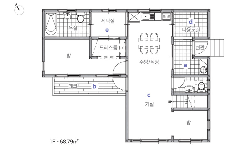
PLAN

{img}
{img}

a) 집 규모에 비해 넓게 자리한 현관. 외출 후 바로 손을 씻을 수 있도록 세면대를 배치했다.

{img}

b) 빨래를 하거나 작업, 휴식, 김장 등 다용도로 쓰이는 야외 데크. 반려견들의 그늘막이 되어주기도 한다.

HOUSE PLAN

대지위치 ▶ 경기도 연천군 
대지면적 ▶ 345㎡(104.36평)|건축규모 ▶ 지상 1층 + 다락 
건축면적 ▶ 68.79㎡(20.8평)|연면적 ▶ 68.79㎡(20.8평) 
건폐율 ▶ 20%|용적률 ▶ 20% 
주차대수 ▶ 2대|최고높이 ▶ 6.1m 
구조 ▶ 기초 – 철근콘크리트 매트기초 / 지상 – 벽 : 경량목구조 외벽 2×6 구조목 + 내벽 2×4 구조목, 지붕 - 2×10 구조목
철물하드웨어 ▶ 메가타이 
단열재 ▶ 그라스울 다등급(외벽, 지붕, 내벽) + 비드법단열재 1종 나등급 스티로폼 50T(외벽) 
외부마감재 ▶ 외벽 – 스터코플렉스, M블럭 목재사이딩, 지붕 – 아스팔트싱글 
내부마감재 ▶ 벽 – LG하우시스 합지벽지 / 바닥 – 포세린 타일, 헤링본 강마루, 데코타일 
창호재 ▶ 트라이캐슬 3중 시스템창호, FAKRO 천창|에너지원 ▶ 도시가스 
욕실 및 주방 타일 ▶ 을지로 타일|수전 및 욕실기기 ▶ 로얄토토, 대림바스 
주방 가구 ▶ 이케아, 백조싱크 | 계단재·난간 ▶ 멀바우 집성판(24T) + 컬러보드(5T, 블랙)  
조명 ▶ 을지로 국제조명(LED 펜던트 등, T5) | 현관문 ▶ 코렐현관문, 살라만더 유리문
중문 ▶ 영림도어|방문 ▶영림도어(미닫이 시공), 청암도어 
설계 ▶ 건우건축사사무소    
시공 ▶ 건축주 직영
{img}

c) 거실에서 계단실을 바라본 모습. 응접실로 쓰는 공간은 아이가 크면 높은 층고를 이용해 벙커 스타일 방으로 새롭게 꾸며줄 생각이다.

{img}

d) 주방 용품과 집을 지을 때 썼던 각종 작업도구를 보관한 다용도실. 시골집에서는 필수 공간이다.

귀농이 아닌 귀촌이기에 땅을 고르는 일은 더 신중할 수밖에 없었다. 싸게 나오는 경매 매물 위주로 알아봤고, 어느 책에서 제안한 체크리스트를 따라 축사, 대형 송전탑, 큰 종교 시설 등이 없는 곳, 아이가 안전하게 놀 수 있는 마을 등 몇 가지 기준을 세워 땅을 보러 다녔다. 책에서는 백 군데 넘는 땅을 봐야 한다고 했다는데, 등잔 밑이 어두웠는지 운명의 땅은 의외로 가까이에 있었다. 서른 군데를 다녀본 즈음이었다.

{img}

e) 침실과 드레스룸, 파우더룸, 세탁실, 욕실을 콤팩트하게 배치해 자연스러운 이동을 유도했다. 주방에서 세탁실로도 문 없이 바로 이어져 살림 동선의 피로함을 줄였다.

“저희 부모님이 여기 바로 옆집에 사세요. 어느 날 친정에 갔는데 여기(지금 집) 땅이 나왔다는 거예요. 부모님이라도 바로 옆에 사는 건 뭔가 부담스러웠는데, 곰곰이 생각해보니 위치가 너무 좋더라고요.”

토지의 지목을 바꾸는 데 천만원이 넘는 세금을 내고, 법정건폐율이 20%라 시작은 순조롭지 않았다. 하지만 귀촌 라이프에 대한 두 사람(당시 아기가 태어나기 전)의 열망을 막진 못했고, 손수 망치를 들고 ‘가성비 끝판왕’ 집짓기에 돌입했다.

{img}

현관에서 주방과 안방이 바로 보이지 않도록 루버형 가벽을 세워 구분을 두었다. 설거지하는 사람과 눈을 마주치며 대화하는 오픈 주방은 부부가 가장 좋아하는 공간

집은 남편 문준 씨가 혼자 짓는 것을 기본으로 하고 목수학교 동기들, 장인어른이 조금씩 도움을 주는 방식으로 진행되었다. 직접 할 수 없는 부분은 비용과 안전을 이유로 외주에 맡겼다. 처음 하는 일이라 시행착오도, 비용을 조율하지 못한 부분도 있어 아쉬움은 남는다. 하지만, 직접 살 곳이라 필요한 곳엔 과감히 투자했는데도 약 7,700만원으로 다락 포함 30평대 집을 완성했으니 성공적이라 칭할 수 있다.

COST INFO

{img}
{img} {img}

 다락은 게스트룸과 작업 공간으로 구분된다. 1층과 통하도록 측벽에 개구부를 내고, 천창을 달아 환기와 채광에도 신경 썼다.

PROCESS

{img}
1. 기초 / 겨울철 기온이 낮은 연천 전곡의 동결심도를 지켜 땅을 깊게 판 후 콘크리트를 통으로 부어 기초를 다졌다. 

2. 골조 / 목수학교에서 배운 경량목구조로 직접 시공했다. 같이 교육받은 동기들이 일손을 도왔다. 

3. 벽체 / 벽과 바닥, 지붕에 OSB 합판을 취부했다. 

4. 방습 / 습기는 배출하고 물을 막는 투습방수지를 벽과 지붕에 설치했다. 공기 순환을 위한 레인스크린 시공도 목조주택엔 필수. 

5. 지붕 / 방수시트를 깔고 테두리에 후레싱 작업 후 아스팔트싱글을 시공했다. 싱글은 가격이 저렴하고 설치가 쉬워 직접 시공하기에 무리가 없다. 

6. 창호 / 연천은 위도가 높은 지역이라 3중 시스템창호를 달았다. 미국식 PVC 시스템창호는 날개가 달려있어 시공이 쉽고 단열에 좋다. 

7. 전기 및 수도설비 / 배우지 않은 분야는 과감히 외부업체에 맡겼다. 내·외부로 시공하는 사람이 가장 많아지는 때라 일정이 겹치지 않도록 조율했다. 

8. 난방 및 방통 / 바닥에서 올라오는 냉기 차단을 위해 스티로폼을 깔고 그 위에 XL관을 설치했다. 다락과 1층 모두 방통으로 마감했다. 

9. 단열 / 벽체 스터드 사이에 그라스울을 시공했다. 

10. 내장 / 모든 벽체에 석고보드를 대어 내부 벽을 만들고 일부 바닥과 화장실에 타일을 깔았다. 실크벽지 대신 통기성이 좋은 합지벽지로 마감했다. 

11. 외장 / 비드법단열재 50T를 외벽에 덧대고 신축성이 좋은 스터코플렉스로 마감했다. 포인트로 목재사이딩을 일부 둘렀다.

12. 조명, 수전, 가구설치 / 에너지 효율이 좋은 LED조명을 천장에 매립했다. 가구는 대부분 이케아 제품을 직접 조립했다.

TIP  |  젊은 부부가 살기 적당한 귀촌주택 택지 고르는 법

{img}

거실 바닥은 포세린 타일 바탕에 헤링본 강마루를 중간에 포인트로 주어 마치 카펫 같은 효과를 낸다. 이젤에 걸린 강아지 그림도 남편 문준 씨의 솜씨.

“땅만 잘 골라도 귀촌 절반은 성공입니다”
도시에서의 삶에 익숙하다면 처음부터 욕심을 내기보다 될 수 있는 한 작은 땅부터 시작할 것을 권유한다. 또한 시세보다 많이 싼 땅은 묘지 근처이거나 맹지 또는 개발 행위가 제한되어 있을 수 있으니 꼼꼼히 따져봐야 한다. 연고가 없는 낯선 곳에 새로 둥지를 틀 계획이라면 원래 살던 곳에서 너무 먼 귀촌은 추천하지 않는다. 여행 갔을 때 좋았던 곳도 터전이 되는 순간 평가 기준은 달라져야 한다. 도시에 비해 일자리도 다양하지 않다. 이를 고려해 우리의 경우는 양가와 멀지 않은 위치, 대중교통 및 도로 개통 예정이라 서울, 파주까지 1시간 생활권이 가능한 연천 전곡을 선택했다.

그리고 부부는 귀촌을 꿈꾸는 이들이 우리를 보고 용기를 가졌으면 좋겠다고 마지막 말을 남겼다.

“돈이 있었으면 용인이나 판교에 갔겠죠. 거긴 일자리도 더 많잖아요. 한정된 자원 내에서 최선의 선택을 한 거예요. 특별한 호재가 없는 이상 이 집으로 돈은 못 벌겠죠. 근데 저희에겐 이 집이 너무 소중해요. 아내와 늘 얘기해요. ‘우리는 돈은 별로 없지만 부자라고.’”

건축주 블로그_
취재_ 조성일  |  사진_ 변종석
ⓒ 월간 전원속의 내집 2018년 10월호 / Vol.236 www.uujj.co.kr​

라이프 카테고리 포스트

퇴사 후, 7천7백만원으로 직접 지은 경량목구조집 - 이글루스