HIGH CEILING HOUSE
| {img} |
|
{img}
거실 쪽 외부에 조성된 마당 조경 공간. 보는 각도에 따라 건물의 모양이 달라보인다. |
|
{img}
남향의 전망을 향해 있는 집의 전면. 가로로 긴 직사각형 모양의 구조를 하고 있다. |
|
{img}
북측 도로 중간 부분의 높이를 기준으로 마당 높이를 결정했다. |
|
{img}
아일랜드 조리대로 깔끔하게 꾸민 주방. 원목 수납장과 스틸 가전제품의 조화가 돋보인다. |
|
{img}
거실에서 좀 더 개인적인 공간으로 통하는 중문. TV벽체와 일체감을 주어 닫혀 있을 때는 히든도어가 된다. |
HOUSE PLAN
대지위치 ≫ 경기도 광주시대지면적 ≫ 859㎡(259.85평)건물규모 ≫ 지하 1층, 지상 1층 ┃ 거주인원 ≫ 2명(부부 + 반려견 2)건축면적 ≫ 254.6㎡(77.02평) ┃ 연면적 ≫ 592.59㎡(179.26평)건폐율 ≫ 29.64% ┃ 용적률 ≫ 27.67%주차대수 ≫ 6대 ┃ 최고높이 ≫ 9.94m구조 ≫ 지하 - 철근콘크리트 온통기초 / 지상 –경량목구조(구조재 JAS 등급, 공학목재 PSL)단열재 ≫ 수성연질폼(ICYNENE) T135, T235 / 압출법 특호 T90, T125, T135 / T90 비드법보온판 2종1호외부마감재 ≫ 외벽 – 솔리드 벽돌 타일 베이직그레이(두라스택), 합성목재 캐슬형 사이딩(뉴테크우드코리아) / 지붕 – 컬러강판담장재 ≫ 솔리드 벽돌 타일 베이직그레이 (두라스택), 미장스톤 마감창호재 ≫ 이건창호(43mm 양면로이 아르곤) ┃ 철물하드웨어 ≫ 심슨스트롱타이열회수환기장치 ≫ Zehnder Comfoair Q 600, ERV에너지원 ≫ LPG + 지열보일러 ┃ 조경 ≫ 현대조경전기·기계 ≫ 신미건설 ┃ 설비 ≫ 동명건축설비 ┃ 구조설계(내진) ≫ ㈜위너스BDG감리 ≫ 미감건축사사무소설계 ≫ 호멘토건축사사무소시공 ≫ 호멘토(HOMENTO) 1670-6234 www.homento.co.kr
SPACE POINT
|
{img}
왼쪽 위부터 1,2,3 |
POINT 1_5 STAR 목조건축물 품질인증한국목조건축협회에서 진행하는 목조건축 감리제도의 인증을 받았다. 건축주 부부는 목조주택이 주는 생활의 편리함을 만끽하는 중이다.
POINT 2_바닥 매립형 욕조욕조를 이용하기 편리하도록 바닥과의 단차를 낮춰 매립형으로 설치했다. 샤워실과 연결된 세면대 공간은 건식으로 사용해 쾌적한 환경을 유지한다.
POINT 3_원목 브러시 실내 도어높은 층고에 맞게 제작한 실내문은 원목에 브러시 작업을 거쳐 자연스러운 질감을 냈다. 반려견 전용 욕실 문에는 반려견을 위한 문을 따로 만들었다.
|
{img}
거실의 높은 층고를 유지한 이국적인 드레스룸. 3단의 넉넉한 수납공간을 확보했다. |
|
{img}
마당 너머 산 전망이 내다보이는 침실. 긴 가로창으로 개방감을 한층 더했다. |
|
{img}
사우나가 설치되어 있는 안방 욕실. 사우나 후 샤워실로 가는 동선이 편리하다. |
SECTION
|
{img}
① 현관 ② 거실 ③ 주방 ④ 침실 ⑤ 드레스룸 ⑥ 파우더룸 ⑦ 욕실 ⑧ 사우나실 ⑨ 다용도실 ⑩ 반려견 욕실 ⑪ 보일러실 ⑫ 수영장 ⑬ 수영장 기계실 ⑭ 주차장 ⑮ 창고 |
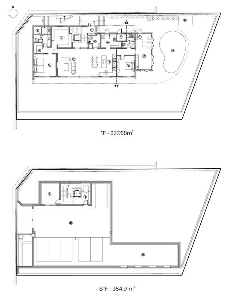
PLAN
|
{img}
① 현관 ② 거실 ③ 주방 ④ 침실 ⑤ 드레스룸 ⑥ 파우더룸 ⑦ 욕실 ⑧ 사우나실 ⑨ 다용도실 ⑩ 반려견 욕실 ⑪ 보일러실 ⑫ 수영장 ⑬ 수영장 기계실 ⑭ 주차장 ⑮ 창고 |
INTERIOR SOURCE
내부마감재 ≫ 벽 - 벤자민무어 친환경 도장 / 바닥 –BONTICELLO 원목마루 / 천장 – 벤자민무어 친환경 도장 + 오크 원목브러쉬 + 친환경 수성 바니쉬(ADLER AQUA-TSP Antiscratch G5)욕실 및 주방 타일 ≫ 윤현상재 수입타일수전 등 욕실기기 ≫ 아메리칸스탠다드, VOVO 비데 일체형 양변기, 핀란드사우나주방 가구·붙박이장 ≫ 미소디자인(호보켄 + 세라믹 상판) ┃ 조명 ≫ 12Lighting계단재·난간 ≫ 합판 집성 위 오크 무늬목, 원목 오크 손스침, 평철난간현관문 ≫ 일레븐도어(원목 + AL 단열도어) ┃ 중문 ≫ 위드지스 자동문방문 ≫ 오크 원목브러쉬 + 친환경 오일 ┃ 데크재 ≫ 화강석(발라화이트)
|
{img}
지하로 향하는 엘리베이터와 계단실. 같은 높이의 간살창과 수납장이 정돈된 느낌을 준다. |
|
{img}
피아노를 전공한 건축주의 연주 공간. 콘서트홀을 연상시키는 원목 마감재는 음향 효과를 내기에도 탁월하다. |
|
{img}
지하로 내려가는 계단실. 계단 난간에 은은한 간접조명을 설치했다. |
|
{img}
노출콘크리트 패널, 벽돌, 철재, 에폭시 코팅 바닥 등을 활용해 빈티지하게 꾸민 지하 주차장. |
|
{img}
선룸 옆 작업 공간. 반대편 부부의 침실에서부터 거실을 지나 길게 이어지는 마당과 전망을 이곳에서도 볼 수 있다. |
|
{img}
천창을 내고 세 개의 폴딩도어를 두어 선룸으로 사용하고 있는 공간. 폴딩도어에는 방충망을 설치해 벌레 걱정을 덜었다. |
|
{img}
곡선의 디자인으로 포인트를 준 야외 수영장. 산의 풍경이 한눈에 보이는 선룸과 선배드는 건축주가 애정하는 공간 중 하나다. |
