논두렁 곁의 벽돌집은 40년이 흘러
오거리 한복판, 복잡한 동네 속에 남겨졌다.
조각케이크 모양의 이 땅에, 가족은 새집을 짓기로 결심한다.
![]() 오거리의 랜드마크가 된 새집. 벽체 오염을 방지하기 위해 후레싱에 신경 쓰고, 건물 하단부는 세라믹 타일을 적용했다. |
“지들이 나가 살 것이지, 내보고 집을 새로 짓자고?”
노모는 아들네 가족의 제안에 처음엔 생경한 표정을 지었다. 40년 전, 논밭이 있던 마을에 유일하게 지어졌던 벽돌집. 이곳에서 태어난 아들이 결혼하고 가정을 이루자, 손주까지 3대가 함께 살 새집을 짓자고 나선 것이다. 가족의 희노애락을 함께 한 구옥은 세월과 함께 많이 변해 왔다. 사방이 고즈넉하게 트였던 집 가까이 도로들이 생기고, 주변엔 건물이 빼곡히 들어섰다. 마당 양쪽이 개발에 수용되고 가족에게 남은 건 조각케이크 모양의 땅뿐. 집은 졸지에 어수선한 오거리의 랜드마크가 되어 현재를 버티고 있었다.
![]() |
BEFORE - 차량통행이 제법 많은 오거리에 고목들에 덮여 있던 구옥의 모습 / 구옥도 대문 방향은 비교적 통행이 적은 이면도로 쪽이었다.
SECTION
![]() |
비좁은 땅일수록 수직적인 입체감이 공간을 풍요롭게 한다. |
“여기, 교회하면 딱 좋은 자리인데요?”
설계 의뢰를 받고 현장을 방문한 홈스타일토토 임병훈 소장이 처음 뱉은 말이다. 삼각형 대지이면서 꼭짓점을 중심으로 무려 다섯 방향으로 길이 갈라진 땅. 배치에 신중을 기하지 않으면 자칫 제대로 된 공간을 건지기 어려운 상황 속에서 수차례의 설계 미팅이 이어졌다. 예각이 되는 모서리 부분은 계단, 거실 등 공적 공간으로 두고 반듯하게 정리될 수 있는 부분은 개인 방으로 구성하기로 했다. 무엇보다 인접 도로로부터 가족의 프라이버시를 보호하는 것도 매우 중요했다.
HOUSE PLAN
대지위치 ▶ 충청북도 청주시
대지면적 ▶ 157.06㎡(47.59평) │ 건물규모 ▶ 지상 2층
건축면적 ▶ 92.86㎡(28.13평) │ 연면적 ▶ 167.52㎡(50.76평)
건폐율 ▶ 59.12% │ 용적률 ▶ 106.66%
주차대수 ▶ 1대 │ 최고높이 ▶ 8.2m
구조 ▶ 기초 - 철근콘크리트 줄기초 / 지상 – 벽 : 2×6 구조목, 지붕 : 2×10 구조목
단열재 ▶ 벽 - 그라스울 140T, 비드법 50T 1종3호 / 지붕 - 수성연질폼 가등급 235T
외부마감재 ▶ 외벽 - 단토타일 데미룬(에프엘홈퍼니), 스터코플렉스 / 지붕 – 컬러강판
담장재 ▶ U블록 쌓기 │ 창호재 ▶ 살라만더 독일식 시스템창호
철물하드웨어 ▶ 심슨스트롱타이 │ 열회수환기장치 ▶ 셀파씨앤씨
에너지원 ▶ 도시가스 │ 조경석 ▶ 현무암판석
인허가 ▶ TOTO건축사사무소
디자인 ▶ 홈스타일토토 02-720-6959 www.homestyletoto.com
시공 ▶ JCON 032-567-1610 www.jconhousing.com
프라이버시에 신경 쓴 입면 구성. 마당과 동선이 연결된 지점에 출입이 원활하도록 대문을 추가했다. |
소소한 미니 중정. 이 공간을 통해 집의 각 부분에 채광이 주로 이루어진다. / 이면도로 쪽 메인 현관. 출입 시 프라이버시를 위해 오목하게 들이고 담장을 둘렀다. |
구옥은 여느 집이 그렇듯 대지 경계선을 따라 담이 있고, 담과 거리를 두고 건물이 놓여 있었다. 작은 마당에는 나무와 화분들이 늘어서 대문에서 집 안으로 들어가는 동선을 방해하고, 실내에서 마당에 쉽게 접근하지도 못해 왔다. 새 집 역시 앞마당을 둔다면 3代가 함께 살만 한 실내 공간은 확보하기 어려웠다. 임소장은 마당은 포기하되 작은 중정과 실내 공간에 투자하는 과감한 선택을 하고, 건축주를 설득했다. “밖으로 떨어져 나간 마당보다 작지만 안으로 품는 마당과 재미난 실내 공간으로 주택의 장점을 더 부각시키는 것이 좋을 것 같았어요. 처음엔 어머니가 마당이 없어져 아쉬워하셨지만, 설계안을 보고 마음을 놓으셔서 다행이었지요.”
집은 담과 건물을 일체화해 최대한 대지 경계까지 덩어리를 팽창시켰다. 일조권으로 이격하는 북쪽 구간에 주차장을 두고, 남동쪽으로 미니 중정을 내어 거실 어디서든 마당을 감상할 수 있도록 했다.
동네를 밝히는 조각케이크 집의 해 질 녁 모습 |
ZOOM IN
외장재로 쓴 세라믹 타일, 이렇게 선택했어요!
최근 집의 유지 관리를 걱정하는 건축주들 사이에서 세라믹 소재의 패널이나 타일이 인기가 높다. 청주집은 비용 문제로 사람 손이 닿기 쉬운 부분 위주로 세라믹 타일을 택하고, 상부는 스터코플렉스를 조합했다. 타일 색상을 결정하는 과정에서 ‘화이트하우스’냐 ‘블랙하우스’냐 기로에 서기도 했는데, 건축가는 각각의 타일을 적용한 주택의 모델링 이미지를 제안해 건축주의 결정을 도왔다.
![]() |
계단은 개방적으로 구성해, 2층 내부까지 깊숙이 시선이 트인다. |
2층 난간부에서 내려다본 계단실. 입체감 있게 구성한 툇마루에서 다양한 활동이 이루어진다. |
INTERIOR SOURCE
내부마감재 ▶ 벽 - 신한벽지 자연림 / 바닥 - LG하우시스 지아사랑애
욕실 및 주방 타일 ▶ 민바스
수전 등 욕실기기 ▶ 세비앙, 대림바스, 새턴바스 외
주방 가구 ▶ 한샘 │ 조명 ▶ 비츠조명, 공간조명
계단재·난간 ▶ 스프러스, 환봉 난간 │ 현관문 ▶ 성우 스타게이트
중문 ▶ 우딘도어 글라스도어, 철 망입 3연동 │ 방문 ▶ 우딘도어
거닐며 눈 둘 곳이 많은 2층 레이아웃. 상부 구조목이 다채로운 선을 만든다. |
화장실은 면적이 넓지 않아 길고 슬림한 상하부장을 두었다. |
주택 입면 일부와 하단은 세라믹 타일로 마감했는데, 패턴과 색상을 고르는 데 오랜 시간이 걸렸다는 후문이다. 덕분에 과하지 않은 산뜻한 컬러와 단단해 보이는 질감이 집의 인상을 돋보이게 한다.
각 층 거실이 중정을 향해 열려 있어 채광과 탁 트인 시선을 확보한 것이 최대 장점이다. 3代가 함께 사는 만큼, 외부 프라이버시는 물론 가족 간의 독립성도 해결 과제였다. 알뜰한 실 배치와 동선 계획으로 두 마리 토끼를 다 잡은, 가족 맞춤형 집은 그렇게 탄생했다.
![]() 중정을 통해 환한 빛이 들어오는 거실 |
ZOOM IN _ 이 집에 쓴 바닥재는?
LG하우시스 Z:IN 친환경 바닥재 ‘지아사랑애'
|
삼대가 함께 하는 집, 어린이나 노약자와 있는 공간은 디자인과 함께 제품 안전성도 중요할 터. 이 집은 LG하우시스의 친환경 인테리어제품 라인인 ‘지아(zea) 시리즈’의 시트 바닥재 ‘지아사랑애’를 선택했다.
‘지아사랑애’는 식물 유래 성분으로 표면을 마감한 바닥재로 환경부로부터 유해물질과 생활환경오염 감소 성능을 인정받아 환경마크를 획득한 제품. 마루 대비 미끄럼 방지 효과가 약 1.3배 우수해 어린이가 뛰거나 걸어 다닐 때 넘어질 위험이 적고, 반려동물도 편안하게 보행할 수 있다. 도톰한 쿠션층이 있어 보행 시 발생하는 충격을 흡수해준다. 우드 스타일은 물론 콘크리트, 헤링본, 타일 등 다양한 디자인 패턴을 선보이고 있어 최근 인기가 높은 바닥재다.
![]() |
POINT 1 - 숨은 세탁실
세탁실은 건조기를 두는 집이 많아지면서 실내로 들어왔다. 사용하지 않을 때는 접이식 도어를 닫아 숨겨 놓는다.
POINT 2 - 슬라이딩 대문
대문은 철제로 제작하고 분체도장했다. 프라이버시 보호를 위해 다소 과장된 사이즈로 주문하고 열고 닫는 데 무리가 없도록 슬라이딩으로 만들었다.
침상과 생활 공간을 분리한 부부 침실. 침상 하부 수납 서랍을 두고 책상도 맞춤형으로 제작했다. |
![]() 안방과 같이 침상과 책상을 제작해 넣은 아이방 |
PLAN
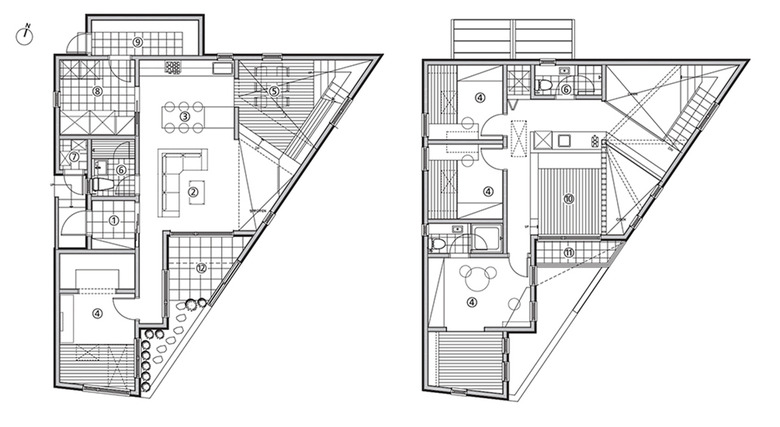
1F – 95.38㎡ / 2F – 72.14㎡ ①현관 ②거실 ③주방 및 식당 ④방 ⑤응접실 ⑥화장실 ⑦보일러실 ⑧다용도실 ⑨팬트리 ⑩툇마루 ⑪테라스 ⑫중정 |
![]() 2층을 위한 간이주방. 공간을 많이 차지할 필요는 없어서 복도 자투리 공간에 배치했다. |
![]() 아이가 장난감을 펼쳐두고 마음껏 놀 수 있는 2층 툇마루. 촘촘히 제작한 목재 파티션이 장식장 역할도 겸한다. |
1층 실내는 거실을 중정에 연결하고 천장고를 한껏 높였다. 모서리에 위치한 계단실은 널찍한 참을 두어 툇마루이자 평상, 작은 가족실로 쓴다. 계단 하부는 책장을 짜 넣고 벤치까지 제작해 서재 역할도 겸한다. 2층은 소거실과 각자의 방, 미니 주방을 배치해 꼼꼼히 활용했다.
어머니의 우려와 아들 가족의 도전으로 시작했지만, 이젠 모두의 마음을 흡족시킨 새집. 손주 세대까지 오래오래 이어갈 가족의 새 역사로 자리매김했다.
취재_ 이세정 | 사진_ 변종석











