6월호 특집- 건축가×건축家 ② 쌍문동 OpAD家(오파드가)
언제나 타인의 집을 위해 펜을 들던 건축가가 가장 특별하고 귀한 의뢰인인 자기 자신과 가족을 마주했다. 서로 다른 라이프스타일과 개성있는 건축관이 모두 녹아난 건축가들이 짓고 사는 집을 소개한다.
©오파드건축연구소 |
건축사사무소 오파드건축연구소 오문석 소장 |
쌍문동 골목길을 따라 북동향으로 면해 있는 주택. |
‘소장님은 어디 사세요?’
미팅을 하다 듣곤 하는 기대감 어린 질문에 ‘아파트 살아요’라고 대답하며 웃어넘기던 시절이 있었다. 여러 핑계를 뒤로 하고 계획한 건축가의 집짓기. 가장 귀중한 클라이언트인 가족들의 요구, 임대 세대와 사무실을 함께 계획하는 것, 그리고 어렵게 찾아낸 도심 속 대지에 스타일을 맞춰나가는 것까지. 오파드가가 쌍문동 골목길에서 만드는 빛과 그림자에는 오문석 소장의 여러 시간과 고민이 겹쳐 담겨 있다.
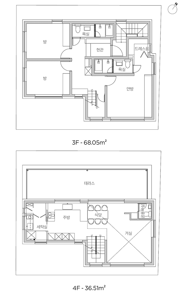
PLAN
![]() |
HOUSE PLAN
대지위치 ≫ 서울특별시 도봉구
건물규모 ≫ 지상 4층
거주인원 ≫ 4명(부부 + 자녀2) + 임대세대 - 2가구 + 건축사사무소
대지면적 ≫ 139.00㎡(42.05평)
건축면적 ≫ 83.21㎡(25.17평) │ 연면적 ≫ 207.61㎡(62.80평)
건폐율 ≫ 59.86% │ 용적률 ≫ 149.36%
구조 ≫ 기초 - 철근콘크리트 매트기초 / 벽·지붕 - 철근콘크리트
단열재 ≫ PF폼 85mm + 경질우레탄폼 보온판 2종2호 150mm
외부마감재 ≫ 외벽 - THK20 콘크리트 벽돌타일(다다벽돌, 모노클래식) / 지붕 –T0.6 컬러강판 돌출이음
창호재 ≫ 이건창호 │ 에너지원 ≫ 도시가스
전기·기계 ≫세원엔지니어링 │ 구조설계≫ 세움건축구조기술사사무소
내부마감재 ≫ 제비표 친환경페인트, did벽지, 비치합판 / 바닥 –동화 나투스 강마루
욕실 및 주방 타일 ≫ 기홍건재 수입타일, 2L무역
수전·욕실기기 ≫ 아메리칸스탠다드, 이누스 │ 가구 및 붙박이장 ≫ 리바트, 한샘, 아론가구
계단재, 난간 ≫ 애쉬집성목, 스틸(평철) 난간 │ 현관문 ≫엘리트 단열방화도어
방문 ≫ 영림도어 │ 시공 ≫ 세움종합건설
설계·감리 ≫ 건축사사무소 오파드건축연구소 070-8600-0463 http://blog.naver.com/opad_oms
직주근접을 위해 지은 건축사사무소 내부는 노출 콘크리트를 적용해 친환경에 다가서는 건축 이념을 표현했다. |
공영주차장과 골목길 사이에 위치한 주택의 모습. |
출퇴근에 20초면 충분하다고 들었다
2층 임대 세대에 우리 직원이 거주 중인데, 그분은 딱 내 반 정도로 출퇴근 시간이 단축됐다.(웃음) 이전에는 사무실이 강동구에 있었다. 오고가는 게 엄청나게 불편하지는 않았지만, 직주가 근접이 되니 확실히 예전보다는 편안하다. 다른 것보다 주차 공간이 해결된 게 가장 좋다. 퇴근 후 아파트 주차장을 헤매지 않아도 되니까. 또 세대별 주차장이다 보니 ‘여기는 제 자리입니다’라고 점찍어두는 그 기분이 좋기도 하고 뿌듯하다.
현관으로 들어서면 바로 보이는 3층 계단실의 모습. 모든 실과 연결되며 공용 공간이 시작되는 4층으로 이어지는 곳이다. |
서울 시내지만 여유로운 느낌이 드는 위치다
이 위치를 고른 이유이다. 도심 내에 집을 짓고 싶었지만, 번화가는 싫다는 욕심이 있었다. 그와 동시에 일터와 멀어지는 것도 고려해야 했다. 몇 년 전에 한 건축주께서 쌍문동에 집을 짓고 싶다고 문의하셔서 로드뷰로 이 동네를 둘러보다 오히려 내가 마음을 뺏겼다. 덕분에 2020년 즈음에 땅 보러 제일 먼저 여기로 왔다. 쌍문동은 공원 숲으로 둘러싸여 있어 비교적 자연과 가깝고, 동시에 수유역세권과 크게 멀지 않아 중심 상권 인프라도 함께 잡을 수 있었다.
|
아내가 건축주 역할을 했다고
기본적으로는 가족의 요구를 내가 수용하고 만들어나간 작품이다. 예전에 살던 아파트에서는 내 주도로 리모델링을 했었는데, 몇 년간 아내의 장난스러운 컴플레인을 들었다.(웃음) 이번에는 인테리어를 아내가 주도하도록 여러 선택권을 넘겼다. 자유롭게 여러 안을 가져오면 나는 실행 가능 여부만 판단해 수렴했다. 인테리어 컬러 등에 아내의 취향이 많이 묻어났다. 또 아이들에게도 자유롭게 의견을 받았다. 평소에 작업할 때도 방을 구성한다면 방 주인을 꼭 같이 만나 이야기하려고 한다. 본인의 공간에는 본인 스스로가 직접 참가해야 후회가 없는 것 같다.
|
그 외에도 작업할 때의 철칙이 있다면
예산안부터 시작해 시공사 선정, 그리고 이를 진행했을 때의 장단점까지 모두 PT처럼 건축주에게 발표하고 공유한다. 번거롭기도 하고 건축주를 설득시키는 데에 시간이 들기도 하지만 이렇게 할 때에 모두의 만족도가 높았기에 포기할 수 없는 방식이다.
샤워 부스와 욕조를 모두 적용한 욕실. 건축주 세대 외에도 최대한 비슷하게 욕실들을 구성했다. |
SECTION
![]() |
골목 필지라 공사가 힘들었겠다
아무래도 오르막이 있어 공사차량 접근이 조금 어려웠고, 양옆 이웃집들과의 거리도 가까운 편이라 쉽지만은 않았다. 게다가 오래된 구옥이었던지라 대지경계측량 결과에서 기존 결과와 새롭게 측량한 수치가 다소 차이가 났다. 실제 땅 크기가 기록보다 작아 이 설계를 다 넣을 수 없었다. 아래와 윗집에 가서 50~60cm 정도 땅을 달라고 해야 하는 상황이었다. 다행스럽게도 두 소유주분들이 협조해주시고 공정 처리를 해 큰 문제가 발생하진 않았다. 이외에도 소음 등으로 민원 등에 대해 함께 처리하며 진행해야 했다.
4층으로 올라오면 일직선으로 주방과 다이닝이 이어진다. 다락과 함께 오픈된 천장이 지붕선을 따라 독특한 개방감을 준다. |
층별 실 구성이 독특하다
우선은 대지 면적이 작아 최대한 활용도 높고 알차게 지으려 노력했다. 고민 끝에 아이들 방과 부부 침실 같은 개인 공간을 집이 시작되는 3층에 전부 넣고, 거실과 같은 공용 공간을 위쪽으로 배치했다. 4층으로 올라가면 높은 대지가 가진 뷰를 누릴 수 있도록 창을 크게 냈다. 맑은 날이면 다락방에서는 서울 시내가 다 보인다.
공용 욕실과 거실을 구분해 작은 복도를 만드는 벽체. 에어컨 등의 자리를 고려해 구성했다. |
오픈된 4층 천장의 자재도 돋보이는데
개방감과 공간감을 어떻게 부여할지에 대해 고민했다. 천장재를 넓은 무늬목 합판으로, 바닥은 타일로 구성해 3층과 차별점을 주면서 공간이 역전된 느낌을 꾀했다. 지붕 선을 따라 오픈된 천장이다 보니 조명 선택이 애매해 3인치 이하의 조명 여러 개를 합판에 매립한 뒤 간접 조명을 더해 거실의 빛을 완성했다.
그레이톤의 가구와 커튼이 조화로운 거실. 메인 창문 위에는 지붕선을 따라 난 삼각형의 창을 추가로 냈다. |
외관은 기존 작품들에 비해 간결한 느낌이다
알아봐 주니 반갑다.(웃음) 확실히 기존 작품들보다는 색감도 그렇고 선이나 매스의 사용에 있어 더 무난하게 그려낸 작업이다. 크게 튀지 않고 주변과 잘 녹아드는 색과 선형으로 구성했다.
동네의 풍경을 고려한 것일까
맞다. 기존 작품들은 넓은 풍경 속에서 하나의 확실한 캐릭터로 존재감을 갖게 한 경우가 많았다. 또 건축주의 요청들이 가지각색이기도 했고. 오파드가의 경우 경제적인 측면에서의 절약을 꾀한 부분도 있지만, 무엇보다 이 집이 이 골목길에서 무던하게 묻어나가는 풍경으로 작용하면 좋겠다는 바람이 있었다. 기존의 캐릭터를 최소한으로 가져가고자 했고, 그런 부분들은 지붕이나 두 개의 매스를 겹쳐 놓은 모양 등 외관으로 남게 됐다.
쌍문동 오파드가 외장마감&인테리어 TIP
![]() |
전원주택처럼 필지가 여유로울 때는 외단열의 두께를 신경 쓸 필요가 없지만 도심의 경우 필지를 알차게 써야 하기 때문에 최대한 얇게 단열을 진행해야 한다. 그렇기에 외장마감은 비교적 얇은 롱브릭타일로 했다. 매스 별로 다른 색상을 적용해 마치 음영을 만드는 느낌으로 연출했다. 거실의 경우 바닥을 타일로, 천장을 목재로 연출해 공간이 역전되어 새로운 감각으로 다가오도록 만들었다. 여기에 3인치 이하의 펜던트 조명을 매립해 군더더기 없이 공간을 밝혔다
다양한 가능성을 염두에 두고 만들어진 다락방. 천창의 빛이 들며 밤낮으로 다양한 분위기를 자아낸다. 집에서 가장 높은 곳이기에 창문으로 도시의 풍경을 넓게 누린다. |
건축사로서의 작품관 유지에 힘을 쓰나
트렌드 속에서 휩쓸리지 않기 위한 원동력이다. 모든 건축가가 그럴 테지만, 클라이언트의 요청과 작품관 사이의 줄타기인 것 같다. 예전에는 나와 스타일이 전혀 다른 요구가 들어오면 그를 만들어줄 수 있는 다른 건축사들을 정중히 소개해드리곤 했다.(웃음) 그런데 작업이 쌓이면서 기존 건축주들이 좋게 소개해줘서 온 의뢰들이 생기니 칼 같은 거절이 힘들더라. 그렇게 융통성을 발휘하며 도전하면서 새롭게 스타일을 정립하는 기회가 되기도 했으니, 결국은 감사한 일이다.
테라스는 프라이버시를 위한 데크재와 벽 조명을 통해 작은 캠핑장 분위기를 가진다. |
건축주들과의 인연을 길게 유지하는 모양이다
동창회처럼 건축주 모임이 있다. 모두 비슷한 마음과 취향으로 집을 짓고 사는 사람들이다 보니 마음이 잘 맞고 즐거운 동호회처럼 지낸다. 작업한 시공사 관계자들을 초대하기도 하는데, 이런 모임은 처음이라고 하시더라. 최근 준공한 주택에서는 아예 건축주들만 따로 불러 집들이 파티도 진행했었다.(웃음) 그렇게 모여 건축주들 간에는 정보 교류도 하고, 나는 집의 상태를 A/S처럼 체크하는 시간이 되기도 한다. 또 집을 짓고자 하는 새로운 의뢰인을 내가 소개받는 자리가 되기도 한다.
건축 이상의 유대감이 있다
내게는 작품의 기회를, 그분들에게는 사는 집을 만들어드리는 일이다. 시공사까지 함께 셋이서 한 팀이 되어 몇 달여를 걸쳐 과업을 완성한 것 아닌가. 결과가 만족스럽다면 유대감이 깊어질 수밖에 없다. 이전에 ‘전원속의 내집’에도 소개된 적 있는 이루가 건축주님의 베이커리 이루카에서 좋은 날이면 여전히 케이크를 주문해 먹는다. ‘건축가, 빵집에서 온 편지를 받다’라는 책의 내용처럼 이메일로 길게 소통하며 작업했던 게 기억에 남는 분이다. 예전에는 내가 건축으로서 건축주님의 취향을 건물에 담아드렸는데, 이젠 건축주님이 우리 가족의 취향대로 재료를 담아 케이크를 꼭 건축하듯 정성스레 만들어주신 걸 받는다. 그럴 때 건축이 참 행복한 일인 걸 실감하고, 다시 일할 힘이 나는 것 같다.
입면과는 또 다른 독특한 조형미를 보여주는 주택의 배면. 그레이톤 롱브릭타일이 골목 풍경과 어우러진다. |
취재_ 손준우 | 사진_ 변종석






