잠시 머문집 25편 : '스테이 옥도'
평범한 일상 속 마음 한구석에 남을 새로운 경험을 안겨줄 공간. 집을 짓기 전 가볼 만한 숙소, 그 스물다섯 번째는 전라북도 군산시에 위치한 ‘스테이 옥도’다.
![]() |
![]() |
전라북도 군산시 무녀도 어촌 마을. 건물 한 채에 방이 여러 개로 나뉜 기존 민박집이 오롯이 한 가족만이 머물 수 있는 쾌적하고 안락한 스테이로 탈바꿈했다. 약 200평대 부지에 50평대 스테이로, 판넬 구조의 건물에서 외벽만을 유지하고 내부 비내력벽을 모두 제거하여 쾌적하고 탁 트인 공간감을 만드는 데 주안점을 뒀다. 외장재는 기존 시공돼 있던 드라이비트를 그대로 유지하되 일부 보수 작업을 거쳐 스타코플렉스 마감 색상을 따뜻한 느낌의 아이보리톤으로 변경했다. 인테리어는 베이지와 브라운톤 컬러 베이스에 목재의 색감, 석재의 질감을 더해 차분하고 안락한 톤앤무드를 주고자 했다.
투숙객에게 색다른 공간 경험을 선사하고자 다도 공간과 자쿠지도 구성했다. 다도 공간은 마치 툇마루에 앉아 있는 느낌이 들도록 기존 바닥과의 단차를 주었다. 넉넉한 크기의 자쿠지에서는 온 가족이 불편함 없이 물놀이를 즐길 수 있다. 더불어 다도 공간과 자쿠지 옆으로는 너른 창을 적용해 대나무 숲 등 바깥 풍경을 감상할 수 있게끔 했다. 침실에는 간접조명을 활용해 아늑한 느낌을 주었으며 창을 크게 만들어 미니 정원을 내다보며 명상의 시간을 가질 수 있도록 했다.
미니 정원은 높은 벽을 둘러 외부 공간과 단절되므로 프라이버시도 누릴 수 있다. 사방이 바다로 둘러싸인 섬마을이기에 자재 수급이 원활하지 않았고 한여름 장마철 공사를 진행해 금속자재의 빠른 부식, 바닥에서 올라오는 습기 등을 더욱 신경 써야 했지만, 그로 인해 온전한 쉼을 위한 명상적 순간을 마주할 수 있는 사색과 휴식의 공간이 탄생할 수 있었다.
비내력벽을 철거해 하나로 탁 트인 실내. 은은한 색감이 따뜻한 분위기를 만든다. |
차를 마시며 여유를 즐길 수 있는 다도 공간에는 석재와 목재를 조화롭게 사용했다. |
거실 옆으로는 통창과 윈도우 시트를 적용해 바깥 풍경을 누릴 수 있도록 했다. |
통창을 적용했지만 미니 정원 바깥으로 높은 벽을 둘러 프라이버시가 보호되는 침실. |
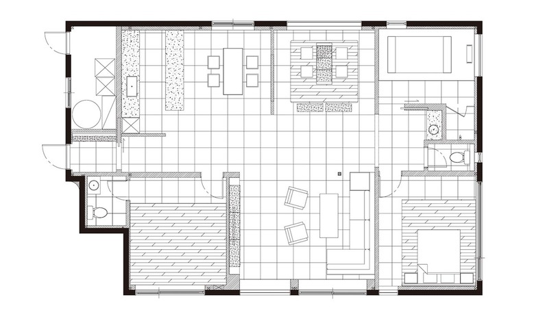
PLAN
![]() |
HOUSE PLAN
대지위치 : 전라북도 군산시
대지면적 : 628.1㎡(190평) | 건물규모 : 지상 1층
건축면적 : 158.04㎡(47.80평) | 연면적 : 158.04㎡(47.80평)
건폐율 : 25.16% | 용적률 : 25.16%
주차대수 : 2대 | 외부마감재 : 드라이비트
내부마감재 : 벤자민무어 도장 | 욕실 및 주방 타일 : 포세린 타일
수전 등 욕실기기 : 아메리칸스탠다드
조명 : LED 3인치 매입 조명 및 펜던트 조명
현관문 : 현장 제작 | 방문 : 재현하늘창 ABS도어 위 필름 마감
붙박이장 : PET 무광 현장제작 | 데크재 : 합성목재 데크재
건축 설계 : 송건축사사무소 송헌규 건축사 063-452-3370
인테리어 설계·시공·감리·조경 : 주식회사 다루다 041-569-8011 https://designdaruda.co.kr
자쿠지와 화장실, 침실이 하나의 동선으로 편리하게 이어진다. |
넉넉한 크기의 자쿠지 내부에는 안전을 고려해 계단을 적용했다. |
INTERVIEW :스테이 옥도 이덕원 대표
무녀도에 스테이를 짓게 된 계기
제가 나고 자란 무녀도에서 15년 가까이 펜션업을 하신 부모님께 사업을 이어받아, 꿈꾸던 공간을 구성하기 위해 스테이를 짓게 되었습니다. 인테리어 설계 소장님의 조언대로 공간이 주는 만족감을 위해 모든 공간에 꼼꼼히 신경을 써서 지었습니다.
스테이를 지으면서 어려웠던 점은
기존 민박집은 지어진 지 오래돼 현 건축법에 맞지 않는 부분이 있었기에 본격적인 시공 전에 우선 인허가 절차를 거치고 양성화 작업을 했습니다. 건물의 위치가 어촌 마을의 작은 산 중턱에 있어, 대형 공사 장비의 진입이 불가능해 이삿짐센터 사다리차 크레인을 사용하기도 했고요. 공사가 끝날 때까지 여러 어려움이 있었지만, 많은 분의 노고 덕분에 잘 마무리할 수 있었습니다.
대면형 아일랜드를 시공해 소통하며 요리할 수 있는 주방. 천장의 라인 간접 조명과 목재 가구를 활용해 포근한 분위기를 조성했다. |
별채처럼 숙소 옆에 따로 위치한 오두막에서는 바다 풍경의 운치를 느낄 수 있다. |
숙소 주변에 꼭 가보았으면 하는 장소, 맛집
스테이 옥도에서 도보로 10분 거리에 있는 ‘무녀도 쥐똥섬’은 하루 두 번 물길이 열리면 건너갈 수 있습니다. 쥐똥섬 주변의 ‘무녀도 갈매기포차’에서 바다를 보며 먹는 해물파전과 해물라면, 이름이 널리 알려진 ‘무녀도 2구 마을버스 카페’에서 맛있는 커피와 수제버거도 추천해드립니다. 차량으로 10분 거리에 있는 ‘선유도 해수욕장’, ‘장자도 대장봉’ 등의 관광지도 가보시기를요.
무녀도 야트막한 언덕 위에 위치한 스테이 옥도. |
스테이 옥도는 어촌 마을 풍경에 자연스레 녹아든다. |
손님들이 어떤 시간을 보냈으면 하는지
한 손님께서 방명록에 남겨주신 글이 있습니다. 스테이 옥도를 ’비워진 듯하지만, 필요한 것은 모두 있는 숙소’이자 ‘온전히 나와 가족들, 서로에게 집중할 수 있는 공간’이라고 표현한 글이었죠. 이처럼 스테이 옥도를 믿고 찾아주신 손님들께서 머무는 동안만큼은 ‘소중한 사람과 선물 같은 시간’을 보내셨으면 하는 바람입니다.
취재협조 : 스테이 옥도
전라북도 군산시 옥도면 무녀도동길 19-8
010-3310-2132
취재_ 오수현 | 사진_ 김진철(아키프레소)
ⓒ 월간 전원속의 내집 2023년 2월호 / Vol.288 www.uujj.co.kr


