잠시 머문집 31편 디모로
평범한 일상 속 마음 한구석에 남을 새로운 경험을 안겨줄 공간. 집을 짓기 전 가볼 만한 숙소, 그 서른 한 번째는 경상북도 경주시에 위치한 ‘스테이 디모로’이다.
![]() |
![]() |
천년의 역사를 품은 경주의 조용한 시골 마을, 먼 나라 이탈리아 남부의 따스한 감성이 묻어나오는 스테이가 자리하고 있다. 하얀 벽과 묘한빛을 내는 분홍색 골강판의 박공지붕, 그리고 올리브색 대문이 반기는 입구로 들어서면 외부에서는 보이지 않았던 넓은 마당과 야외 수영장이 나타난다.
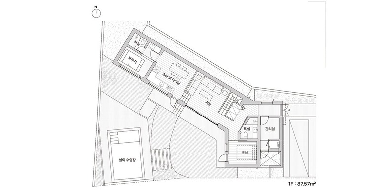
PLAN
![]() |
![]() |
(위, 아래) 본래 대지에 존재했던 레벨 차이를 살려 계단을 설치한 내외부의 모습. 큰 창을 통해 마당과의 연결성과 개방감을 높였다. 야외 수영장은 어른부터 아이들까지 함께 즐길 수 있도록 바닥 깊이를 나누어 디자인하고, 모자이크 타일로 포인트를 주었다. |
에스아이엠 건축사사무소는 대지가 4m 현황 도로와 함께 주택 단지에 근접해 있어 프라이버시의 확보를 위한 계획이 필요했고, 레벨 차이가 있었기 때문에 이를 어떻게 활용할 것인지에 대한 고민으로 프로젝트를 시작했다고 전했다.
비교적 큰 규모의 마당과 야외 수영장 및 밖으로 시야가 열린 실내 자쿠지를 조성하기 위해 건물을 도로와 가까운 북쪽에 가늘고 긴 형태로 배치하고, 나머지 부분은 야외 공간으로 조성했다. 또한 마당의 담장을 올려 외부의 시선을 차단하고 도로 쪽으로 향한 창 역시 최소한으로만 계획해 프라이버시를 지켰다.
HOUSE PLAN
대지위치 : 경상북도 경주시
대지면적 : 327㎡(98.92평) 건물규모 : 지상 1층 + 다락
건축면적 : 87.57㎡(26.49평) 연면적 : 100.00㎡(30.25평)
건폐율 : 26.78% 용적률 : 26.78%
외부마감재 : 외부용 지정 페인트 도장
내부마감재 : 석고보드 위 벤자민무어 페인트 도장
욕실 및 주방 타일 : 비숍세라믹 수전 등 욕실 기기 : 아메리칸스탠다드
주방 가구 : 진심의 부엌 조명 : 코램프
현관문 : 제작금속도어 방문·붙박이장 : 현장 제작
데크재 : 타일 조경 : 건축주 직영
전기·기계 : ㈜대림엔지니어링 설비 : ㈜한양텍
구조설계 : ㈜강구조안전기술 시공 : ㈜삼토종합건설
설계·감리 : 에스아이엠 건축사사무소 053-746-5964 https://blog.naver.com/simarchit
유니크한 컬러로 제작한 주방 가구와 박공지붕, 격자창이 만나 이국적인 공간을 형성한다. |
아담하게 조성된 다락방은 천창을 통해 햇빛을 받는다. |
편안하고 안락한 자쿠지 공간을 만들기 위해 따듯한 색의 페인트 마감과 하얀색 모자이크 타일, 간접 조명 등을 적용했다. |
파스텔 톤의 컬러로 사랑스럽게 포인트를 준 차분한 내부는 마당으로 열린 큰 창 앞으로 거실과 주방, 다이닝 공간이 한눈에 들어온다. 대지의 레벨 차이를 그대로 살려 거실과 주방의 공간을 구분했고, 천장의 형태도 다르게 구성해 자칫 단조로울 수 있는 내부에서 다양한 공간감을 느낄 수 있도록 연출했다. 주방과 다이닝 공간을 지나서 뒤쪽으로 들어가면 아늑한 자쿠지 공간을 만날 수 있다. 입구 쪽에는 메인 침실과 욕실 그리고 다락으로 올라가는 계단이 설치되어 있다. 박공지붕 아래 천창으로 하늘을 담는 다락은 소박하지만 따스한 분위기가 물씬 느껴진다. 마당 공간도 마찬가지로 대지의 레벨 차이를 활용해 한층 다채로운 산책로를 완성했고, 민트색으로 빛나는 수영장과 조화롭게 어우러진다.
다이닝 공간에서 이어지는 건식 세면대 공간. 문과 벽 타일의 색상을 통일해 포인트가 된다. |
욕실에도 색감이 돋보이는 모자이크 타일과 테라조 바닥 타일을 사용해 차분하면서도 개성있는 공간을 만들었다. |
밤에는 운치 있는 벽조명이 켜져 한층 프라이빗한 쉼터로 변신한다. |
INTERVIEW :
스테이 디모로 박아영 대표
Q. 경주를 선택한 이유는
경주의 특별함을 모르고 지낸 날이 많았습니다. 20대에는 도시로 가야 한다는 당연한 생각을 가지고 경주를 떠나기도 했는데, 결국에는 이곳으로 돌아와 있더라고요. 그만큼 저에게 익숙하면서 편안한 곳이고, 일상에 지칠 때 경주에서 시간을 보낼 기회가 생긴다면 그 누구라도 좋아할 곳이라고 확신했어요.
Q. ‘디모로’라는 이름의 뜻은
‘디모로’는 ‘디모라레(dimorare)’라는 이탈리아어에서 따온 말입니다. “거주하고, 머무르다”라는 뜻으로 환대와 수용의 의미도 담고 있습니다. 남편과 이탈리아 소도시를 여행하며 머물렀던 에어비앤비 숙소와 호스트의 따뜻했던 환대, 그곳에 머무르는 동안 제가 느꼈던 감정들이 제가 스테이를 운영하고자 하는 방향과 잘 맞는다고 생각해 이름을 결정했습니다.
Q. 프로젝트의 전체적인 콘셉트는
유럽의 다른 유명한 관광 도시보다 이탈리아 남부의 소도시들이 저의 취향에 맞았어요. 자연이 주는 힘과 소박하고 아기자기한 동네의 오래된 집들이 너무 귀여웠거든요. 우리나라와는 다른 컬러를 많이 쓰는 점도 무척 재미있었습니다. 스테이도 저의 취향을 담아 아기자기한 시골 할머니집 같은 공간을 만들고 싶었어요.
Q. 가장 공들이고 애정하는 공간은
아무래도 도전 정신으로 진행한 핑크색 지붕과 야외 수영장의 민트색 모자이크 타일 등 컬러감이 뚜렷한 작업들에 가장 공을 들인 것 같습니다. 주변에서 걱정하기도 했고 저도 반신반의하면서 진행했는데, 다행히 상상했던 대로 색상이 잘 나와주어서 가장 마음에 드는 부분입니다.
취재협조 : 스테이 디모로 | 경상북도 경주시 장재안길 7-9 010-2158-0079
취재_ 조재희 | 사진_ 윤동규
ⓒ월간 전원속의 내집 2023년 8월호 / Vol.294 www.uujj.co.kr



